La Junta de Gobierno del Ayuntamiento de Mula ha concedido a la Dirección General de Centros Educativos la licencia de obras para la ejecución del Proyecto de sustitución de cubiertas e instalación de placas fotovoltaicas en el CEIP Anita Arnao.
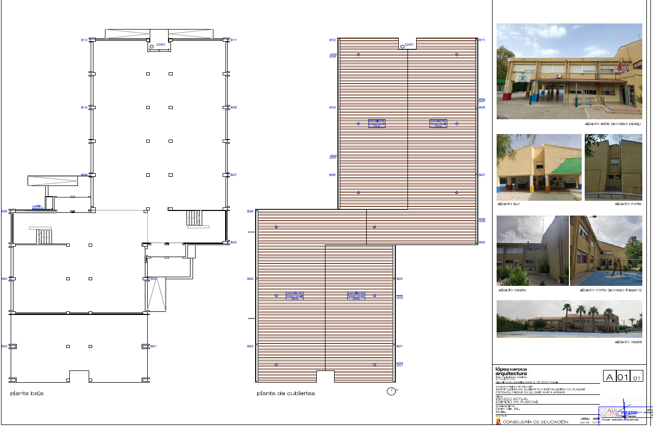
La actuación consiste en la sustitución, en los cuatro edificios que integran las instalaciones, de las diferentes cubiertas existentes de fibrocemento y sus bajantes, gárgolas, impermeabilización de canalones, sustitución de pararrayos y chimenea de caldera. Asimismo, en el Edificio 2 (Primaria) se va a construir una cubierta plana para la colocación de placas solares fotovoltaicas. La superficie de cubierta total afectada es de 1295 metros cuadrados.
De este modo, se elimina el fibrocemento de las actuales cubiertas, se mejora la eficiencia energética del edificio y, con la instalación de las placas solares, se aminoran las emisiones de CO2 a la atmósfera y el Ayuntamiento verá reducida considerablemente la factura mensual de la luz.
Se trata de una inversión con un presupuesto de ejecución por contrata de 542 mil euros procedentes de Fondos Europeos Next Generation, Las obras se iniciarán a principios del próximo verano y tienen un plazo de ejecución de tres meses.
El alcalde de Mula Juan Jesús Moreno ha mostrado su alegría y satisfacción por la pronta ejecución de las obras, ya que «se trata de una actuación que tanto el Ayuntamiento de Mula como la comunidad educativa del CEIP Anita Arnao vienen demandado desde hace varios años». Asimismo, ha declarado que «va a suponer una importante mejora de la seguridad, de las infraestructuras y de las condiciones de trabajo de los docentes y de los escolares muleños».

